Izsoļu arhīvs
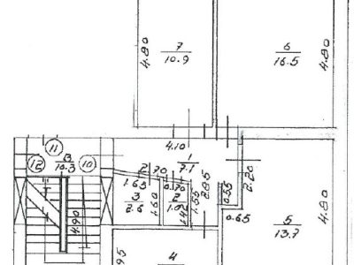
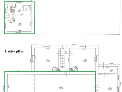
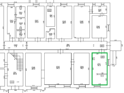
Pārdod nekustamo īpašumu – dzīvokli Ziedu ielā 6-10, Dzelda, Nīkrāces pagasts, Kuldīgas novads, 58.4 m²
Kuldīgas novada pašvaldība saskaņā ar Publiskas personas mantas atsavināšanas likumu pārdod atkārtotā elektroniskā izsolē ar ...















